Autumn Leaf
Two story
DESCRIPTION
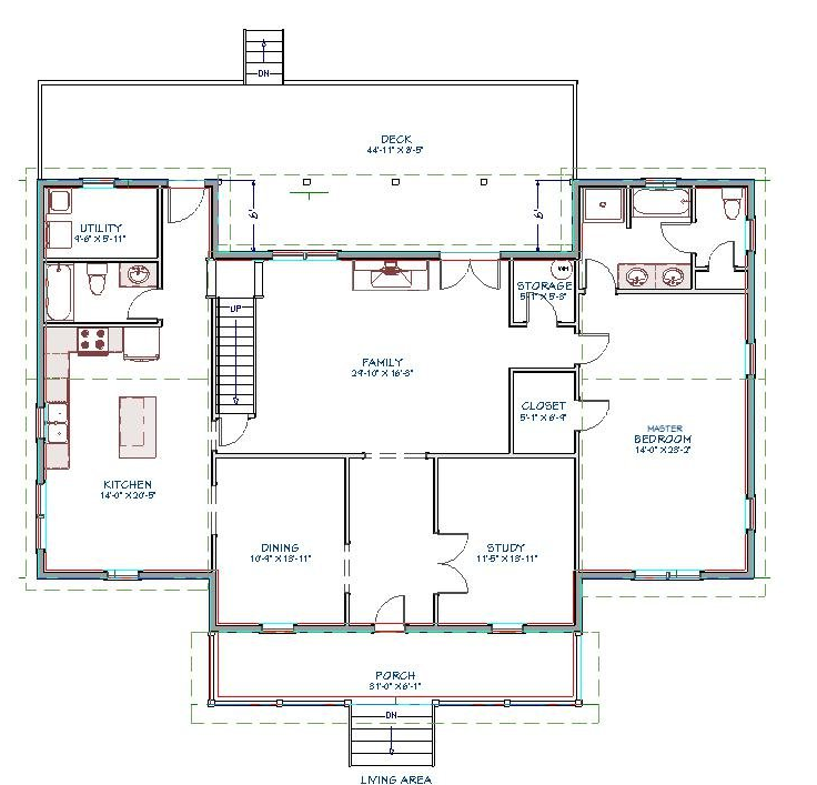
The Autumn Leaf is a house that anyone would want to make their home. It features a first floor Master Suit that is wonderful in size and amenities and affords the option to separate the parents from the kids. It also has a first floor Study that could easily be a home office with so many working remotely. Another wonderful feature is a large deck that is nearly half covered. Keep in mind that this plan can be bought as is or used as a starting point for the design of your dream home.
$599
BUY NOW
First Floor Plan
Second Floor Plan
Elevations



AMENITIES
- 8' x 44' 11" Treated Deck
- 8' x 29' 5" Covered Deck in the rear
- Cover Front Porch
- Open Concept
- Large Kitchen
- Large Pantry
What's Included in your $599 House Plan Purchase
- One-on-one meetings with the floor plan designer to discuss your ideas.
- Unlimited changes to your floor plan design, at no additional charge.
- A buildable plan that follows local jurisdiction requirements. *
- A PDF set of CAD sheets that will allow you to build your home one time. Every PDF package includes:
o Cover Sheet—A rendering of the front exterior of the house.
o Foundation Plan—This plan gives the foundation layout, including support walls, excavated and unexcavated areas, if any, foundation notes and details, and floor framing.
o Detailed Floor Plans—These plans show the layout of each floor of the house. Rooms and interior spaces are carefully dimensioned.
o Cross-section wall details, as well as window and door schedules. These plans may also show the location of kitchen appliances and plumbing fixtures.
o Suggested locations for electrical fixtures, switches and outlets.
o Interior Elevations—The interior elevation drawings show a suggested layout design of kitchen cabinets.
o Door & Window Schedules—Sizes, quantities and descriptions of all doors and windows shown on the plan.
o Exterior Elevations—Included are front, rear, left and right sides of the house. Exterior materials, details and measurements are also given.
o If trusses are used, it's suggested that you use a local truss manufacturer to design your trusses to comply with your local codes and regulations.
Disclaimer: Each plan is buildable and designed to be consistent with the ___ Virginia Dwelling Code in effect at the time the plan was created.*
*Every jurisdiction may have varying requirements for engineering. Modifications may be necessary to meet applicable building codes, ordinances, local climatic, and geographical design criteria. 599 House Plans, nor the Floor Plan Designer, are not responsible for these requirements. Consult a builder, architect or other construction professional as necessary.
Manufacturer instructions should be followed for all materials, appliances, and systems. Heating/air conditioning layouts, plumbing pipe layouts, and electrical wiring layouts are not included. Consult a local mechanical contractor for systems suitable for local climate conditions.
Please note: With the purchase of custom floor plan, you may only build one home from a set of plans. Plan licenses are non-transferable and cannot be resold.



