Pine Needle
Rancher
DESCRIPTION
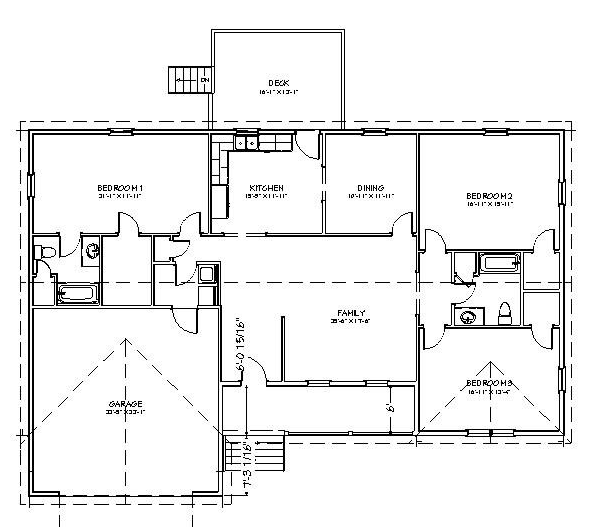
This beautiful home has large rooms with high ceilings, a gourmet kitchen with center island that’s perfect for hosting and an adjoining dining room. The Pine Needle is a perfect home for a family with two children. All the bedrooms are of good size. Cover front porch is ideal for those time when you want to set outside and have a cup of coffee. The Pine Needle has a two-car attached garage that keeps you out of inclement weather as you go to your car. The deck on the rear is perfect for those family outdoor barbeques. Keep in mind that this plan can be bought as is or used as a starting point for the design of your dream home.
$599
BUY NOW
First Floor Plan
Second Floor Plan
Elevations



AMENITIES
- 16’ 1” X 12’ 1” rear deck
- Open Concept with high ceilings
- Large Kitchen and dinning
- Large family room
- Two car garage
- Covered front porch
What's Included in your $599 House Plan Purchase
- One-on-one meetings with the floor plan designer to discuss your ideas.
- Unlimited changes to your floor plan design, at no additional charge.
- A buildable plan that follows local jurisdiction requirements.*
- A PDF set of CAD sheets that will allow you to build your home one time. Every PDF package includes:
- Cover Sheet—A rendering of the front exterior of the house.
- Foundation Plan—This plan gives the foundation layout, including support walls, excavated and unexcavated areas, if any, foundation notes and details, and floor framing.
- Detailed Floor Plans—These plans show the layout of each floor of the house. Rooms and interior spaces are carefully dimensioned and keys are given for cross-section details provided later in the plans, as well as window and door schedules. These plans may also show the location of kitchen appliances and plumbing fixtures, and may suggest locations for electrical fixtures, switches and outlets.
- Interior Elevations—The interior elevation drawings show a suggested layout design of cabinets, utility rooms, fireplaces, bookcases, built-in units and other special interior features depending on the nature and complexity of the item.
- Door & Window Schedules—Sizes, quantities and descriptions of all doors and windows shown on the plan.
- Exterior Elevations—Included are front, rear, left and right sides of the house. Exterior materials, details and measurements are also given.
- Cross-Section/Wall Section Details—Important changes in floor, ceiling and roof heights or the relationship of one level to another are called out. Also shown, when applicable, are exterior details such as railing and banding.
- Structural Plan—Overall layout and necessary details for the ceiling, second-floor framing (if applicable) and roof construction. If trusses are used, it's suggested that you use a local truss manufacturer to design your trusses to comply with your local codes and regulations.
Disclaimer: Each plan is buildable and designed to be consistent with the ___ Virginia Dwelling Code in effect at the time the plan was created.*
*Every jurisdiction may have varying requirements for engineering. Modifications may be necessary to meet applicable building codes, ordinances, local climatic, and geographical design criteria. 599 House Plans, nor the Floor Plan Designer, are not responsible for these requirements. Consult a builder, architect or other construction professional as necessary.
Manufacturer instructions should be followed for all materials, appliances, and systems. Heating/air conditioning layouts, plumbing pipe layouts, and electrical wiring layouts are not included. Consult a local mechanical contractor for systems suitable for local climate conditions.
Please note: With the purchase of custom floor plan, you may only build one home from a set of plans. Plan licenses are non-transferable and cannot be resold.


